
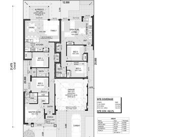
Smart dual-key floorplan with two fully self-contained homes, separate entrances, double garage and modern open-plan living — delivering maximum rental return from a single build. .

Designed for the Perth market, this dual-key layout features two self-contained homes, private access, stylish open-plan living and an alfresco — perfectly suited to booming rental demand and strong investment returns across WA.

This dual-key design offers five bedrooms, two kitchens, private entries and modern open-plan living — giving you two rental incomes from one block, with the comfort and quality of a full family home. Ideal for investors chasing high yields and low vacancy.
Add a footnote if this applies to your business
We use cookies to analyze website traffic and optimize your website experience. By accepting our use of cookies, your data will be aggregated with all other user data.